Symbiose(Es gibt keinen Zufall) |
Solon
|
|
|
|
MuttiIstStolz

Mitglied
 
gesperrter User
Dabei seit: 31.08.2019
Beiträge: 31
Bundesland:
Schleswig-Holstein
Meine Beziehung zum Gewerberecht:
Automatenhersteller
Level: 24 [?]
Erfahrungspunkte: 70.418
Nächster Level: 79.247
 |
|
|
2
03.09.2020 07:50 |
|
|
Solon
|
|
|
|
Lachschlag
Doppel-As
gesperrter User
Dabei seit: 20.11.2019
Beiträge: 132
Bundesland:
Schleswig-Holstein
Meine Beziehung zum Gewerberecht:
sonstige
Level: 30 [?]
Erfahrungspunkte: 289.140
Nächster Level: 300.073
Themenstarter
 |
|
|
3
15.09.2020 20:07 |
|
|
Lachschlag
Doppel-As
gesperrter User
Dabei seit: 20.11.2019
Beiträge: 132
Bundesland:
Schleswig-Holstein
Meine Beziehung zum Gewerberecht:
sonstige
Level: 30 [?]
Erfahrungspunkte: 289.140
Nächster Level: 300.073
Themenstarter
 |
|
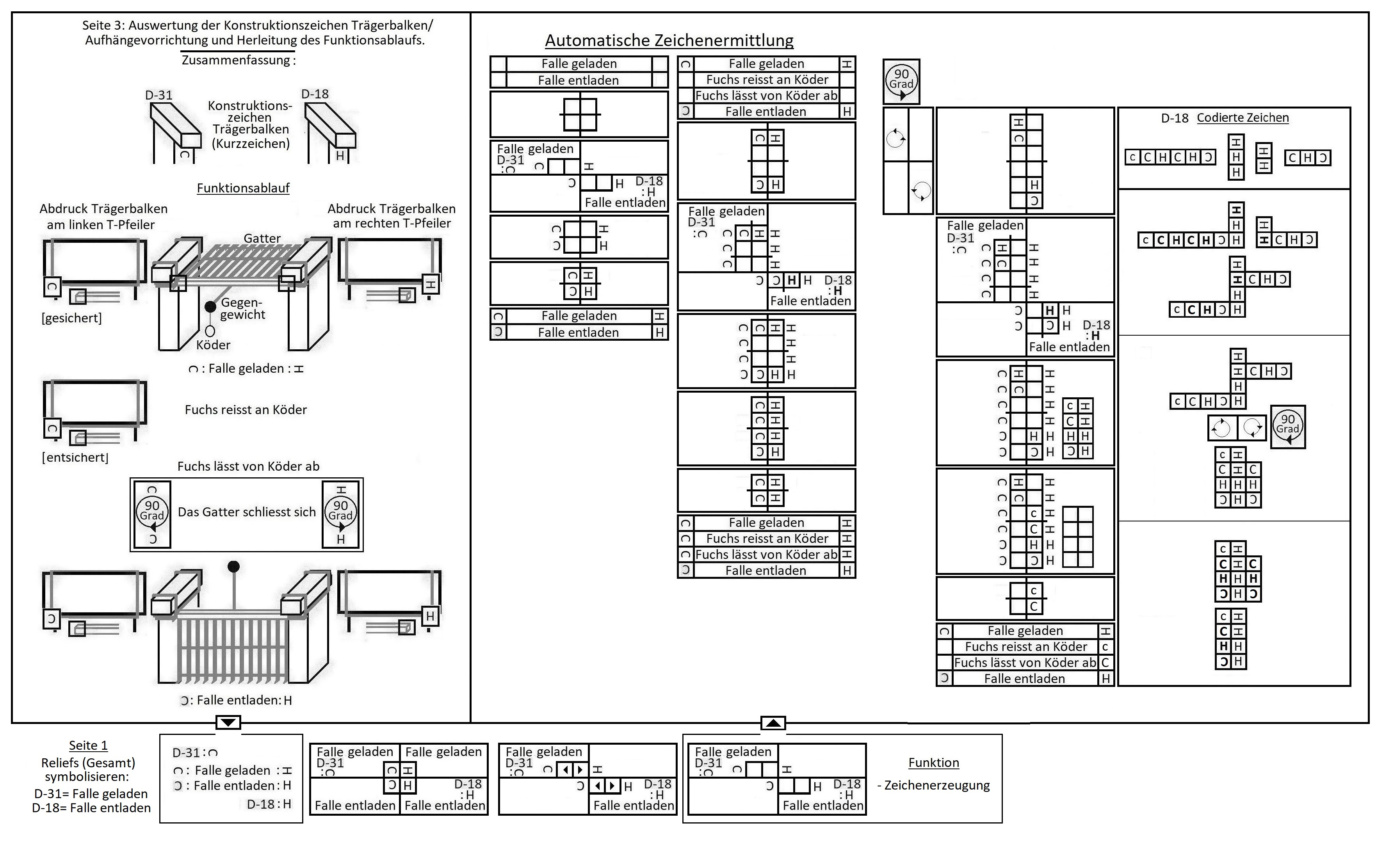
hier nochmal die überarbeitete fassung von den zentralpfeilern
Lachschlag hat diese Bilder (verkleinerte Versionen) angehängt:
Lachschlag hat diesen Anhang in "Forum-Gewerberecht" eingestellt. Lachschlag versichert, dass dieser Anhang frei verfügbar ist bzw. das Copyright bei Lachschlag liegt.
Sollten Sie einen Copyrightverstoß feststellen, so wenden Sie sich bitte direkt an Lachschlag. Das Veröffentlichen von copyrightgeschützten Material ist gemäß unseren Foren-Regeln nicht gestattet.
Lachschlag hat diesen Anhang in "Forum-Gewerberecht" eingestellt. Lachschlag versichert, dass dieser Anhang frei verfügbar ist bzw. das Copyright bei Lachschlag liegt.
Sollten Sie einen Copyrightverstoß feststellen, so wenden Sie sich bitte direkt an Lachschlag. Das Veröffentlichen von copyrightgeschützten Material ist gemäß unseren Foren-Regeln nicht gestattet.
Lachschlag hat diesen Anhang in "Forum-Gewerberecht" eingestellt. Lachschlag versichert, dass dieser Anhang frei verfügbar ist bzw. das Copyright bei Lachschlag liegt.
Sollten Sie einen Copyrightverstoß feststellen, so wenden Sie sich bitte direkt an Lachschlag. Das Veröffentlichen von copyrightgeschützten Material ist gemäß unseren Foren-Regeln nicht gestattet.
Lachschlag hat diesen Anhang in "Forum-Gewerberecht" eingestellt. Lachschlag versichert, dass dieser Anhang frei verfügbar ist bzw. das Copyright bei Lachschlag liegt.
Sollten Sie einen Copyrightverstoß feststellen, so wenden Sie sich bitte direkt an Lachschlag. Das Veröffentlichen von copyrightgeschützten Material ist gemäß unseren Foren-Regeln nicht gestattet.
Lachschlag hat diesen Anhang in "Forum-Gewerberecht" eingestellt. Lachschlag versichert, dass dieser Anhang frei verfügbar ist bzw. das Copyright bei Lachschlag liegt.
Sollten Sie einen Copyrightverstoß feststellen, so wenden Sie sich bitte direkt an Lachschlag. Das Veröffentlichen von copyrightgeschützten Material ist gemäß unseren Foren-Regeln nicht gestattet.
|
|
5
05.01.2021 08:20 |
|
|
Lachschlag
Doppel-As
gesperrter User
Dabei seit: 20.11.2019
Beiträge: 132
Bundesland:
Schleswig-Holstein
Meine Beziehung zum Gewerberecht:
sonstige
Level: 30 [?]
Erfahrungspunkte: 289.140
Nächster Level: 300.073
Themenstarter
 |
|
Wichtige Korrektur: John Wheeler
|
|
7
05.01.2021 10:08 |
|
|
|
| Berechtigungen
|
| Sie haben in diesem Forenbereich folgende Berechtigungen
|
Es ist Ihnen nicht erlaubt, neue Themen zu verfassen.
Es ist Ihnen nicht erlaubt, auf Beiträge zu antworten.
Es ist Ihnen nicht erlaubt, Ihre Beiträge bis zu 24h nach dem Posten zu editieren.
Es ist Ihnen nicht erlaubt, Anhänge anzufügen.
Es ist Ihnen erlaubt, Anhänge herunterzuladen.
|
BB Code ist Aus.
Smilies sind Aus.
[IMG] Code ist Aus.
Icons sind Aus.
HTML Code ist Aus.
|
Views heute: 179.032 | Views gestern: 467.757 | Views gesamt: 1.172.036.816
Impressum
 CT Security System Pre 6.0.1: © 2006-2007 Frank John |
|